Kopfzeile

neu — [06684] Schöne Altbauwohnung zu vermieten

Wohnung zur Miete in Sollenau (2601) / Objektnummer: 224/06684

Wohnung zur Miete in Sollenau (2601) 797,34 €

3 Zimmer

1 Badezimmer

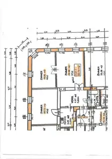
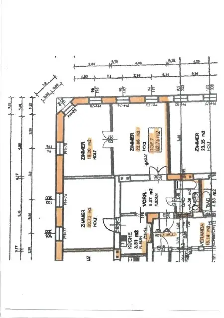
83 m² Wohnfläche

AbstellraumEtagenheizungKabel-TV
Diese sanierte Altbauwohnung befindet sich im 1. Obergeschoss eines Wohnhauses in Sollenau mit guter Verkehrsanbindung.
Die Wohnung verfügt über eine Wohnnutzfläche von rund 82,76m² und bietet 3 Zimmer, eine spearate Küche (nicht möbliert), ein Badezimmer mit Badewanne, ein seprates WC sowie einen großzügigen Vorraum. Ein Lagerraum im Erdgeschoss steht zusätzlich zur Verfügung. Gemeinsam mit einem Nachbarn wird eine Loggia beziehungsweise ein Windfang genutzt. Die Wohnung wird unmöbliert übergeben.

Die monatliche Gesamtmiete beträgt € 797,34 und setzt sich aus einem Hauptmietzins von € 594,92 netto, einem Betriebskosten-Akonto von € 129,93 netto, sowie € 72,49 Umsatzsteuer (10%) zusammen. Die Kaution beträgt € 2.392,00 was drei Bruttomonatsmieten entspricht. Das Mietverhältnis ist unbefristet, ein Einzug ist nach Vereinbarung möglich.

Beheizt wird die Wohnung mittels Gastherme, deren jährliche Wartung durch den Mieter zu erfolgen hat.

Die Wohnung befindet sich in einer ruhigen Wohngegend mit Parkmöglichkeiten direkt vor dem Haus.
Öffentliche Verkehrsmittel sowie Einkaufsmöglichkeiten sind in wenigen Minuten erreichbar.

Die Vermietung erfolgt provisionsfrei.

Kontakt und Beratung:
Frau Petra Tippel 050100/ 38511 oder Frau Maria Schuster 050100/ 38516

Lageplan

Inhalt wird geladen
Preise
Gesamtmiete
797,34 €
Nettomiete
594,92 €
Betriebskosten netto
129,93 €
Betriebskosten brutto
142,92 €
Gesamtmiete USt.
72,49 €
Kaution
2.392,00 €
Provision
provisionsfrei
Fakten
Objekttyp
Wohnung
Wohnfläche
83 m²
Toiletten
1
Stockwerk
1
Gebäude
Altbau
Status
verfügbar
Petra Tippel

s Real Wiener Neustadt

Petra Tippel

Hausverwaltung