Kopfzeile

[06703] Zentral gelegene Wohnung mit Süd Loggia/Garage möglich/Plankeng. 2/T31

Wohnung zur Miete in Wiener Neustadt (2700) / Objektnummer: 224/06703

Wohnung zur Miete in Wiener Neustadt (2700) 1.282,00 €

3 Zimmer

1 Badezimmer

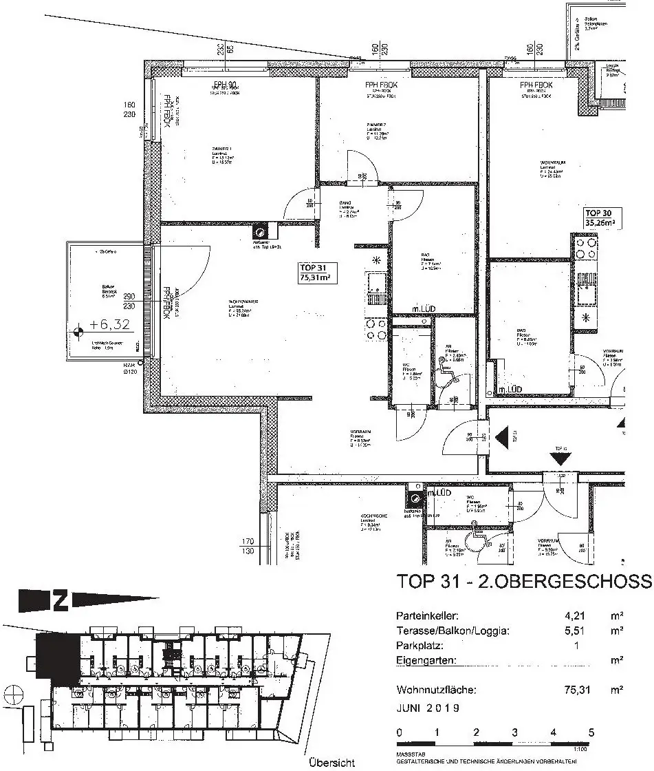
75 m² Wohnfläche

6 m² Außenfläche

barrierefreiAufzugLoggiamöbliertAbstellraumFußbodenheizungKabel-TV
Zentral gelegene Wohnung mit Süd Loggia/Garage möglich/Plankeng. 2/T31

Diese 75 m² große Neubauwohnung wird Sie begeistern!
In Innenstadtnähe und trotzdem in Ruhelage befindet sich ein neuwertiger Wohnbau. In diesem ist, mit süd-westlicher Ausrichtung, diese Wohnung mit Süd-Loggia am zweiten Liftstock. Die lichtdurchfluteten Räume mit der modernen Wohn-Küche mit Ausgang auf die Süd-Loggia, zwei weitere Zimmer, ein Badezimmer mit großer, barrierefreier Dusche, ein Abstellraum und ein extra WC werden Ihnen gefallen.

Beheizt wird die Wohnung mittels Gaszentralheizung und Fußbodenheizung. Ein zusätzliches Plus ist das Klimagerät, mit dem wahlweise auch geheizt werden kann. Die Fenster sind mit Außenjalousien und Fliegengittern versehen. Ein Kellerabteil steht als Stau- und Lagerraum zur Verfügung.

Auf Wunsch kann ein Stellplatz in der hauseigenen Tiefgarage um € 100,--/mtl. gemietet werden.

Die ideale Wohnung für Sie?

Das Mietverhältnis ist auf 5 Jahre befristet.

Gemäß § 5 Maklergesetz weisen wir darauf hin, dass wir als Doppelmakler tätig sind.

Ausstattung

Küche mit E-Geräten, Badezimmer mit Dusche und WC, Klimagerät, Außenjalousien, Fliegengitter

Lage und Verkehrsanbindung

Die Innenstadt ist zu Fuß in 5 Minuten erreichbar, ebenso befindet sich die FH in unmittelbarer Nähe.

Grundriss

Lageplan

Inhalt wird geladen
Preise
Gesamtmiete
1.282,00 €
Nettomiete
1.065,00 €
Betriebskosten netto
217,00 €
Betriebskosten brutto
217,00 €
Provision
provisionsfrei
Fakten
Objekttyp
Wohnung
Wohnfläche
75 m²
Loggiafläche
6 m²
Toiletten
1
Loggias
1
Baujahr
2020/2021
Status
verfügbar
Anita Hirschler

s Real Wiener Neustadt

Anita Hirschler

Immobilienmaklerin