Kopfzeile

[06706] Belagsfertiges Einfamilienhaus in ruhiger Siedlung

Haus zum Kauf in Wiener Neustadt (2700) / Objektnummer: 224/06706

Haus zum Kauf in Wiener Neustadt (2700) 419.000 €

4 Zimmer

1 Badezimmer

112 m² Wohnfläche

24 m² Außenfläche

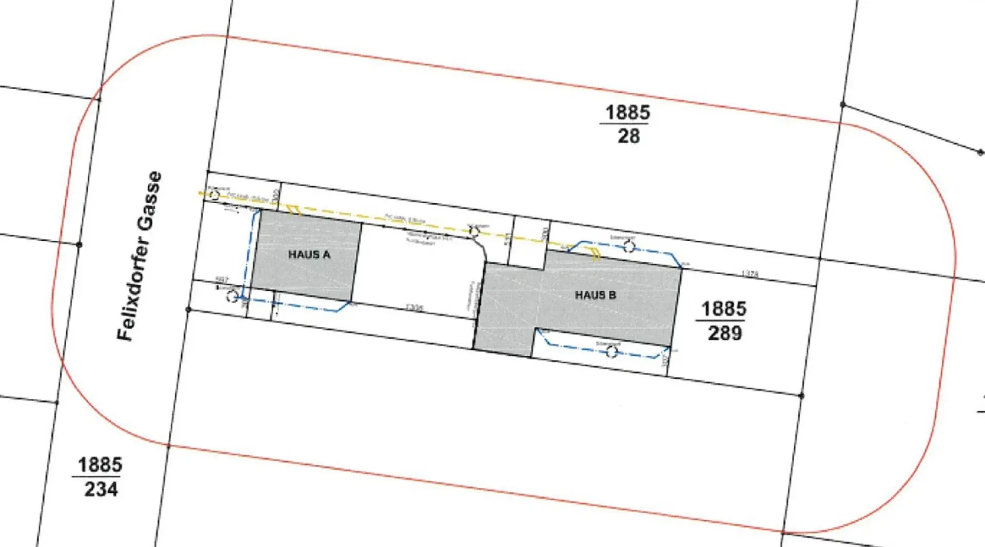
270 m² Grundfläche

TerrasseAbstellraumFußbodenheizung
Belagsfertiges Einfamilienhaus in ruhiger Siedlung

Zum Verkauf steht ein brandneues Einfamilienhaus im Flugfeldviertel von Wiener Neustadt.

Die Lage besticht durch ihre sehr gute Anbindung an die Südautobahn (Auffahrt Wöllersdorf ca. 7 Fahrminuten entfernt). Mit dem Bus erreicht man den Hauptbahnhof Wiener Neustadt in ca. 17 Minuten.
Vor dem Objekt befinden sich 1-2 Parkplätze auf Eigengrund, jedoch ist öffentlich ebenso ausreichend Platz.

Das Erdgeschoß des Ziegelmassivhauses teilt sich in einen Eingangsbereich mit Zugang zu dem Technikraum bzw. zu dem WC. Der Technikraum ist zusätzlich von außen begehbar. Eine große und helle Wohn- Ess -Küche mit Ausgang auf die Terrasse rundet das Erdgeschoß ab.
Im Obergeschoß befinden sich 3 Schlafzimmer mit Schrankraum sowie ein Badezimmer.

Die Heizung und Warmwasseraufbereitung erfolgen mittels Wärmepumpe bzw. Fußbodenheizung am Letztstand der Technik.
Die 3-fach verglasten Kunststoff / Alu – Fenster sind mittels elektrischen Rollläden verdunkelbar und mit Insektenschutzgittern ausgestattet.
Eine schlüsselfertige Option wird vom Verkäufer auf Anfrage auch angeboten.

Gemäß § 5 Maklergesetz weisen wir darauf hin, dass wir als Doppelmakler tätig sind.

Lage und Verkehrsanbindung

Siedlungslage

Grundrisse

Lageplan

Inhalt wird geladen
Preise
Kaufpreis
419.000,00 €
Kaufpreis/m²
3.741,07 €
Provision
3,6 % vom KP inkl. 20 % USt.
Fakten
Objekttyp
Haus
Wohnfläche
112 m²
Terrassenfläche
24 m²
Grundfläche
270 m²
Toiletten
2
Terrassen
1
Baujahr
2024
Status
verfügbar
Gernot Dürr

s Real Wiener Neustadt

Gernot Dürr

Immobilienmakler

Virtuelle Tour