Kopfzeile

neu — [06721] WOHNEN MIT BLICK IN DEN AKADEMIEPARK

Wohnung zur Miete in Wiener Neustadt (2700) / Objektnummer: 224/06721

Wohnung zur Miete in Wiener Neustadt (2700) 894,60 €

2 Zimmer

1 Badezimmer

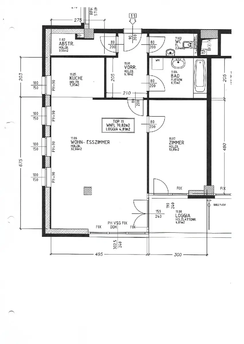
71 m² Wohnfläche

5 m² Außenfläche

barrierefreiTerrasseAbstellraumFernheizungFußbodenheizungKabel-TV
WOHNEN MIT BLICK IN DEN AKADEMIEPARK

Ruhige Lage mit Blick in den Akademiepark. Diese sonnige und sehr gepflegte ca.71 m² große 2-Zimmer Eigentumswohnung, befindet sich im 2 OG mit Lift.

Die Wohnhausanlage wurde 2010 errichtet und umfasst 4 Stockwerke. Beheizt wird diese Wohnung mittels Fernwärme über Fußbodenheizung. Diese Wohnung war in den letzten Jahren immer vermietet und wird in einem Top Zustand mit sehr schöner Küche dem neuen Eigentümer übergeben. Abgerundet wird dieses Angebot mit einem eigenen Autoabstellplatz und großen Kellerabteil. Elektrische Außenrollos vorhanden.

Alle Geschäfte des täglichen Bedarfs befinden sich in unmittelbarer Umgebung und Fußläufig-Sei es Lebensmittelgeschäfte (Hofer, DM, Billa Plus) Trafiken, den Bahnhof oder den beliebten Akademiepark zum Spazieren und Erholen.

Ich freue mich Ihnen diese Wohnung zu zeigen.

emäß § 5 Maklergesetz weisen wir darauf hin, dass wir als Doppelmakler tätig sind.

Lage und Verkehrsanbindung

absolut ruhig

Grundriss

Lageplan

Inhalt wird geladen
Preise
Gesamtmiete
894,60 €
Nettomiete
645,45 €
Betriebskosten netto
131,82 €
Betriebskosten brutto
145,00 €
Sonstige
33,00 €
Gesamtmiete USt.
84,33 €
Provision
provisionsfrei
Fakten
Objekttyp
Wohnung
Wohnfläche
71 m²
Terrassenfläche
5 m²
Toiletten
1
Terrassen
1
Baujahr
2010
Status
verfügbar
Michaela Gradwohl

s Real Wiener Neustadt

Michaela Gradwohl

Immobilienmaklerin