Kopfzeile

neu — Gepflegte, renovierte Wohnung Nähe Hauptplatz zu vermieten

Wohnung zur Miete in Wiener Neustadt (2700) / Objektnummer: 224/06738

Wohnung zur Miete in Wiener Neustadt (2700) 1.304,26 €

3 Zimmer

1 Badezimmer

100 m² Wohnfläche

Zentralheizung
In dieser gut angelegten, renovierten und sehr gepflegten Wohnung im 2. Stock werden Sie sich garantiert wohlfühlen.
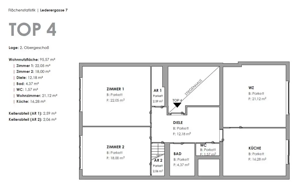
Die großzügige Wohnfläche von 100,22 m² bietet ausreichend Platz und eine klare, angenehme Raumstruktur.

Raumaufteilung
Die Wohnung verfügt über eine praktische Aufteilung: Vorraum, 2 Zimmer, Abstellraum, Badezimmer, WC, Küche, Wohnzimmer

Helle Räume und ein angenehmer Grundriss machen diese Wohnung ideal für Paare oder kleine Familien.

Ausstattung & HeizungKüche wir möbliert mitvermietet
Beheizt wird die Wohnung mittels Gaszentralheizung, die für gleichmäßige und zuverlässige Wärme sorgt.
In der monatlichen Miete ist ein Heizkosten-Akonto von € 210,46 bereits inkludiert.

Mietkonditionen
Das Mietverhältnis ist befristet auf 5 Jahre.

Grundriss

Lageplan

Inhalt wird geladen
Preise
Gesamtmiete
1.304,26 €
Nettomiete
751,65 €
Betriebskosten netto
204,45 €
Betriebskosten brutto
224,90 €
Heizkosten netto
210,46 €
Heizkosten brutto
252,55 €
Gesamtmiete USt.
137,70 €
Kaution
3.900,00 €
Fakten
Objekttyp
Wohnung
Wohnfläche
100 m²
Toiletten
1
Status
verfügbar
Maria Schuster

s Real Wiener Neustadt

Maria Schuster

Staatl. gepr. Immobilienverw.